I to jest właśnie projekt naszego wymarzonego domku 🙂
Wizualizacja, która oczywiście troszkę się różni od tego cośmy tam sobie wymyślili.
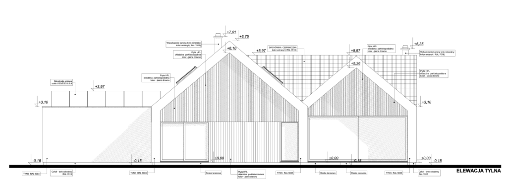
Od samego początku zakładaliśmy, że nasz dom kształtem będzie przypominał stodołę w nowoczesnym stylu. Miało być prosto i bez żadnych piruetów i skomplikowanych łamańców na dachu, i innych takich…, ale o problemach wynikających z prostoty tej konstrukcji opowiemy później. Wszystko po kolei 🙂
Nasz domek będzie więc wyglądał tak…
Z tyłu rezygnujemy z tego wieeeeelkiego przeszklenia, bardziej ze względów praktycznych, bo taka szyba jest MEGA, ale no… cena też byłaby MEGA. Wizja może i jest nowoczesna i taka szyba wygląda świetnie na wizualizacji, ale rozstawianie rusztowania, żeby ją kiedyś umyć już świetne by nie było. Kto wie… może kiedyś to przebudujemy? Może! Póki co jesteśmy już na tym etapie:



A to powyżej to założenia projektu. Do boku większej stodoły doklejamy garaż, a w miejscu, w którym miał być on pierwotnie będzie pracownia artystyczna Kasi. Czad! Nie możemy się doczekać 😊
Kupiliśmy ten projekt jeszcze przed naszą przeprowadzką, mieszkając w Poznaniu. Tak naprawdę zanim zdecydowaliśmy się na wspomnianą „stodołę” szukaliśmy inspiracji w projektach domów z płaskim dachem w nowoczesnym, modernistycznym stylu. Później dowiedzieliśmy się, że warunki zabudowy naszej działki na to nie pozwalają, ale… jak to się mówi – nie ma tego złego. Bo dach skośny to… przestrzeń nad głową?
Nad jedną stodołą jest otwarta przestrzeń, nad drugą poddasze użytkowe. Chcieliśmy czegoś innego, domu, który troszkę się wyróżni, będzie po prostu nieco inny, ale który też będzie prosty w swojej konstrukcji. Nie porwalibyśmy się na projekt, który zrujnuje nasz budżet. I tak oto trafiliśmy na pracownię, której projekty zachwyciły nas od pierwszego wejrzenia, przez co jeden z nich zostanie już z nami na całe życie. Na stronie nanostudio.pl każdy jeden projekt jest po prostu rewelacyjny. Trochę mniej rewelacyjny był architekt, który częściej ziewał niż zadawał jakieś konkretne pytania, tak jakby nie był zainteresowany rozmową z młodymi ludźmi, a kiedy rozmawialiśmy o powiększeniu wersji jego projektu to uznał, że to jakaś fanaberia i jemu się podoba taki jaki jest, bo wielkościowo jest przecież wystarczający, gdyż on całe życie mieszkał w bloku i pokoje, salon i cała reszta są odpowiednie… 🤔
Drogi panie, gdyby były odpowiednie, to nie prosilibyśmy o zmiany i powiększenia. Niektóre komentarze też mógł pan sobie darować, bo zwyczajnie w świecie były nie na miejscu, a poczucie oceniania nas pojawiło się od samego przekroczenia progu studia i nie zniknęło aż do dzisiaj.
No, w każdym razie dostosowaliśmy projekt pod nasze potrzeby, jak już pisałem – jest powiększony, cała bryła jest wydłużona, przez co i pojedyncze pokoje są większe, mamy też dobudowany z boku garaż i pracownię z antresolą, która ma przeolbrzymią przestrzeń na poddaszu. Ze względów praktycznych zrezygnowaliśmy z tego olbrzymiego okna w salonie, poza tym koszt takiej szyby…
No i trafiliśmy w dobre ręce, architekt, który nam to zaadoptował na działce to fajny facet, rozwiązujący na bieżąco problemy, a nie tworzący je. I dobrze, bo po tym jak byliśmy traktowani nie wyobrażam sobie budować tego domu w Poznaniu.
No i przyszedł wreszcie ten dzień, dzień w którym rozpoczęliśmy pierwsze prace. Geodeta przyjechał zrobić pomiary, następnego dnia budowlańcy wkroczyli już do akcji. Jeszcze zanim wbiliśmy łopatę w ziemię, nie byliśmy w stanie wyobrazić sobie naszego domu na działce, na której ówczesne chaszcze sięgały wyżej głowy, noga zapadała się w wilgotną glebę po kolano, a pobliskie aligatory syczały ze złości, że ktoś wchodzi na ich teren.
I w zasadzie rozpoczęliśmy etap, w którym wiesz już, że coś tam się na tej działce dzieje, ale w zasadzie jeszcze nie wiesz co. Dziura w ziemi i jakieś tam wykopy. Po co, na co, co dalej? Byliśmy w dobrej sytuacji, bo budowlańcy ściągali wszystkie niezbędne materiały na własna rękę, mieliśmy spokój i mogliśmy zająć się w tym czasie swoją pracą. No i wszystko w cenach bazujących na granicy rozsądku. Mieliśmy ogarnięta ekipę, której przygotowanie fundamentu poszło gładko. Po 3 tygodniach fundament był już zalany, a potem zaczęliśmy już iść w górę. Niedawno dopiero okazało się, że mury nie są do końca równe, jeszcze przed świętami Bożego Narodzenia wskoczyła ekipa tynkarzy, która przeklinała murarzy, ale powiedzcie mi, na której budowie nie ma takich akcji? Murarze zachowali się mega w porządku i pokryli koszty pogrubień tynku, więc nie wyszliśmy na tym źle.
Przy początkowym etapie prac mieliśmy polecone ekipy, ale później korzystaliśmy z serwisu do wyszukiwania fachowców. Jeśli Ty jesteś teraz w miejscu, w którym my byliśmy rok temu, to polecamy gorąco serwis Oferteo.pl
Serwis zbiera potencjalnych wykonawców w jedno miejsce, przez co każdy z nich jest dla siebie konkurencyjny. Każdy kolejny telefon to nowa propozycja. I w ten sposób spokojnie zjedziesz z ceny nawet o połowę. I nawet nie trzeba nic ściemniać, bo już słyszałem komentarze, że za tyle to panu nikt nie zrobi. Ah tak, jest pan pewien? 😎 Wszystko jest zgodne z prawdą i to konkurencja przebija cenę.
Tylko…
Nie ma też co szukać na siłę najtańszej możliwej usługi, bo partaczy nie brakuje!!!
A oto filmik przedstawiający nasz pierwszy etap 😉



